In de woonwijk Het Reeland aan de Reeweg Oost in Dordrecht is het markante pand van de voormalige technische school – de oude LTS – in een nieuw jasje gestoken. Onder de naam “Nieuwe LTS” is het gebouw getransformeerd naar een wooncomplex, waarbij het karakter van het oorspronkelijke rijksmonument zorgvuldig bewaard is gebleven.
Het gebouw was oorspronkelijk in gebruik als technische school, de ambachtsschool/lagere technische school, gebouwd in 1918 naar ontwerp van architect Bernard van Bilderbeek. Het monumentale karakter valt op door glas-in-loodramen, marmeren trappen en siermetselwerk die het vakmanschap van de tijd laten zien.
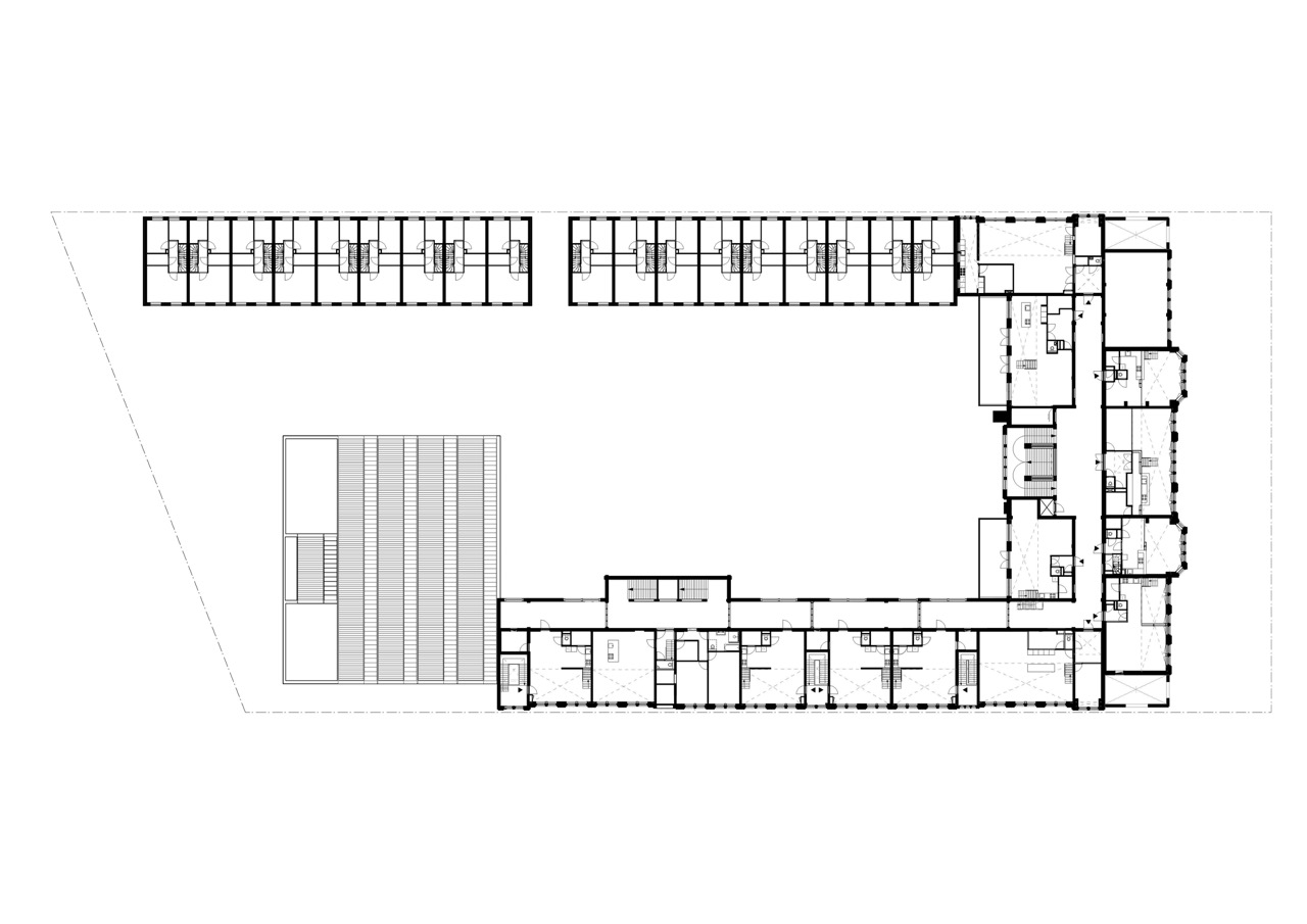
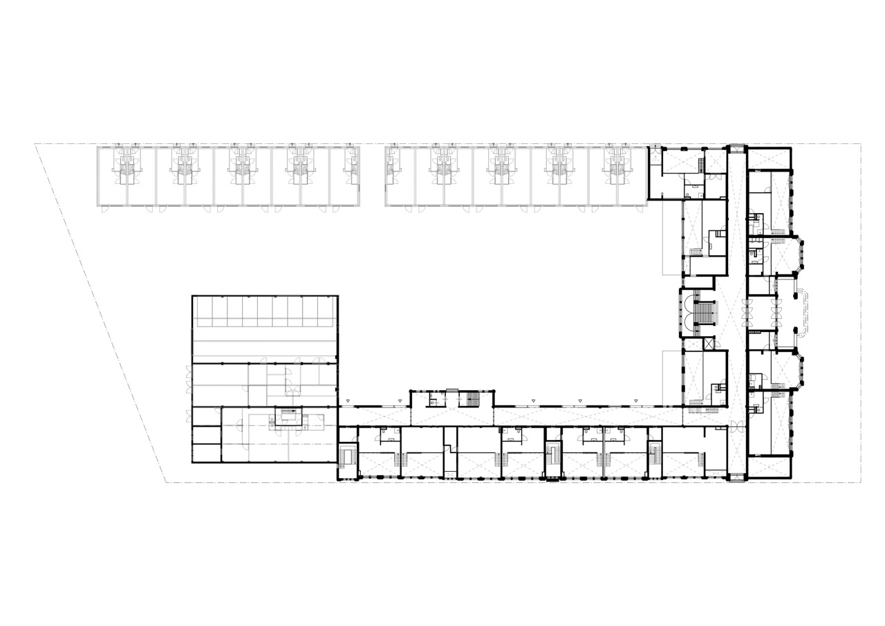
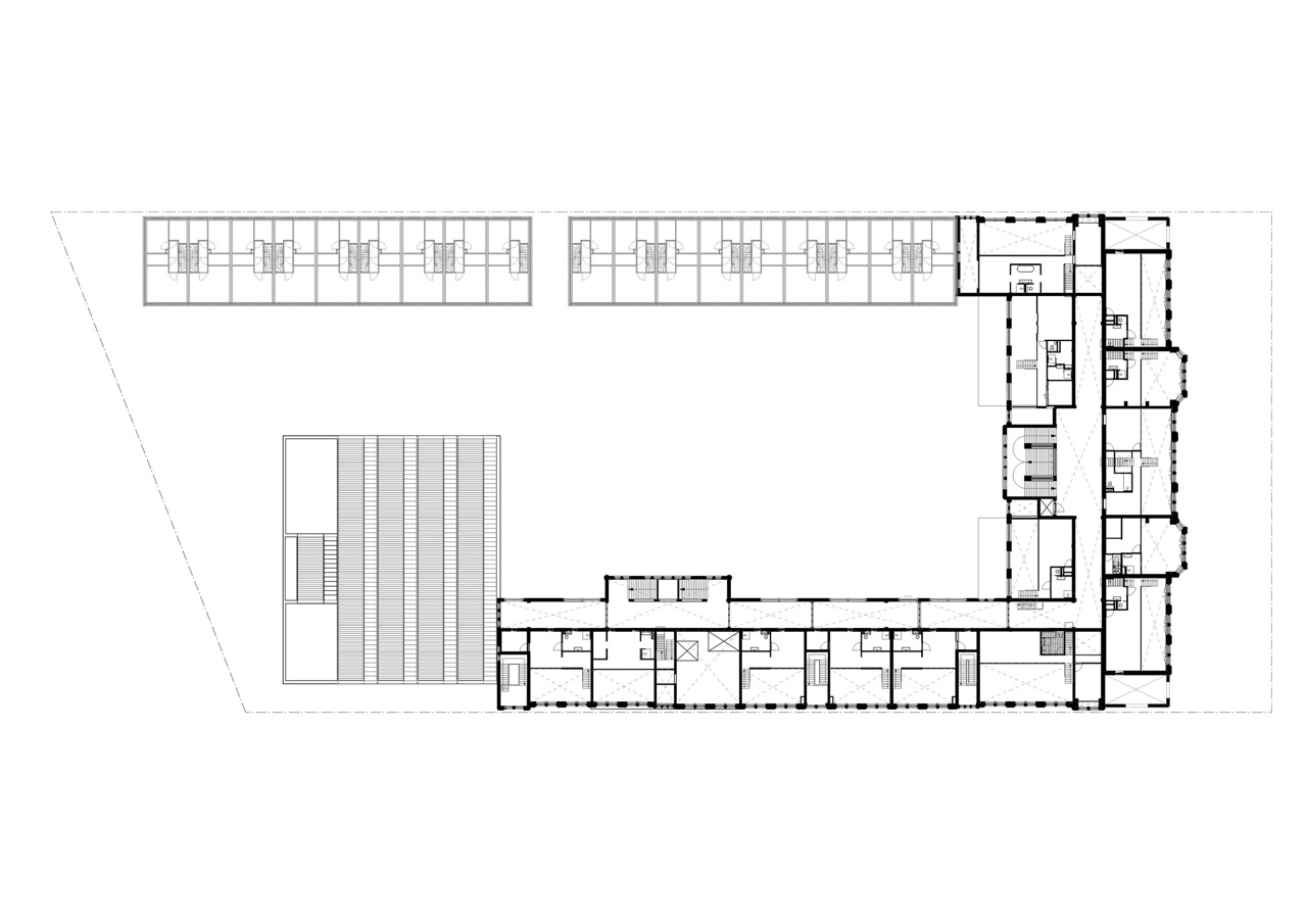
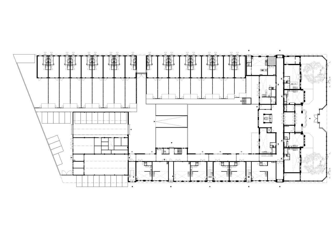
De transformatie begon rond 2015/2017. Het project had als doel het voormalige schoolgebouw een nieuw leven te geven als woongebouw – met behoud van het karakter van het gebouw. In de eerste fase werden 29 appartementen gerealiseerd binnen het oude gebouw. Lokalen en werkplaatsen werden omgevormd tot woonunits, terwijl originele stijlelementen behouden bleven. In de tweede fase volgden 18 eengezinswoningen als uitbreiding van het totaalconcept. Het geheel omvat circa 50 woningen, inclusief starterswoningen, appartementen en gezinswoningen. Elke woning heeft een buitenruimte en er is parkeerruimte + een groene binnenplaats.
Het project “Nieuwe LTS” laat zien hoe een oud onderwijsgebouw een tweede leven kan krijgen – met respect voor het verleden én gericht op de toekomst. Het is een geslaagd voorbeeld van herbestemming: behoud van cultuurhistorisch waardevolle elementen gecombineerd met moderne woonoplossingen.
Programma: 29 luxe appartementen en 18 eengezinswoningen
publicaties: Fotoboek transformatie, renovatie en nieuwbouw ‘Nieuwe LTS’ Dordrecht (juli 2018)
Documentaire RTV Dordrecht “De Nieuwe LTS: documentaire over het gebouw en haar gebruikers”
https://youtu.be/YfCEu0gliNk?si=VtpVC8H78x-dhclj