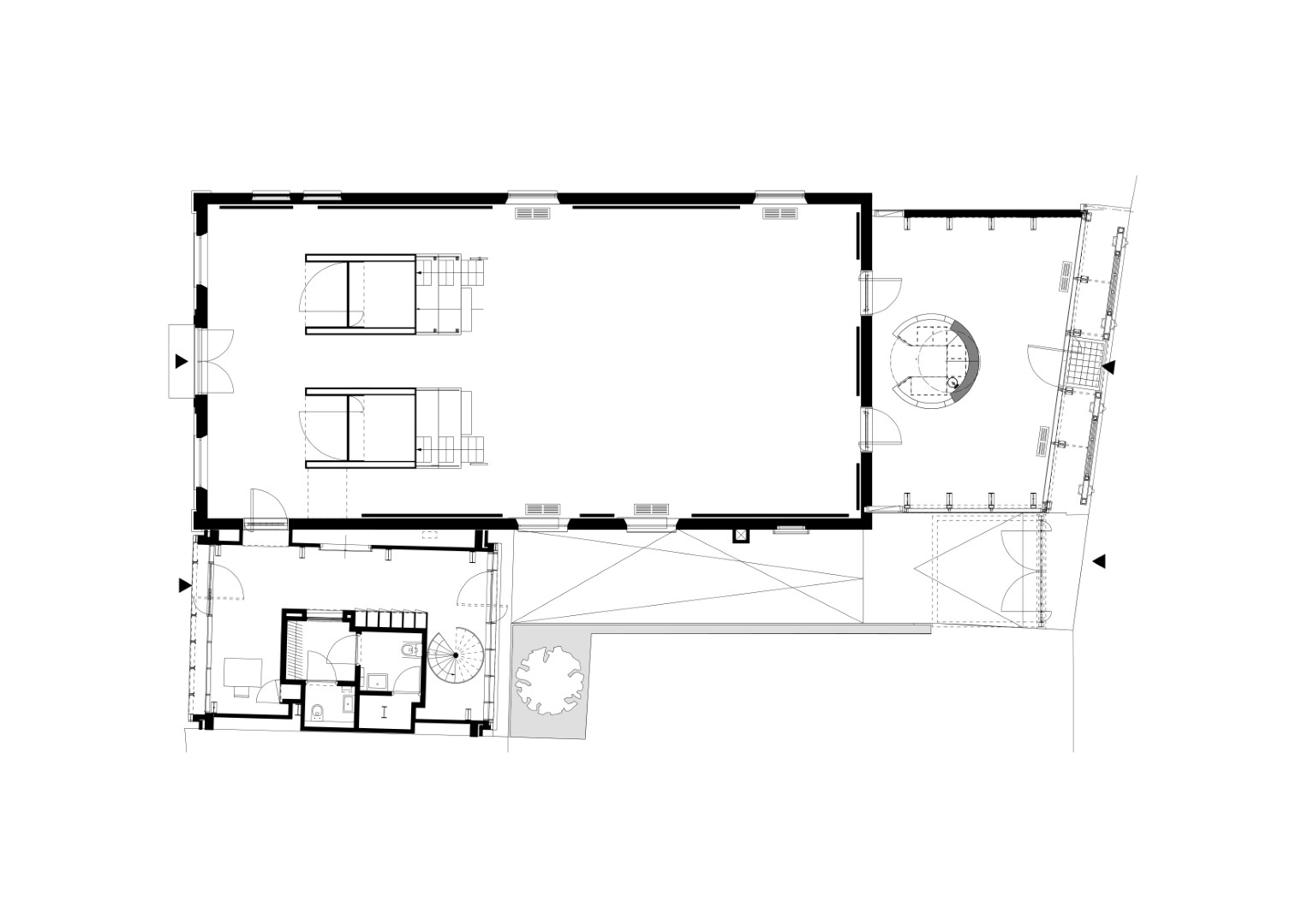
Recht tegenover De Witt, aan de Augustijnenkamp, transformeerden wij een neogotisch kerkgebouw uit 1885 tot een eigentijdse plek voor kunst en ontmoeting. De opgave was helder: behoud de monumentale kracht van het gebouw en maak het tegelijkertijd geschikt voor een dynamisch cultureel programma.
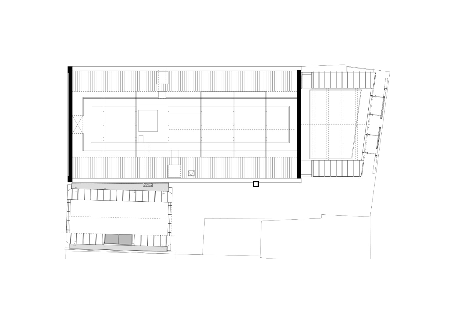
De essentie van het ontwerp ligt in het respecteren van het oorspronkelijke volume en de ruimtelijke monumentaliteit van de kerkzaal. De hoge gewelven, de ritmiek van de gevels en de baksteenarchitectuur vormen het decor voor een flexibel en toekomstbestendig interieur. Nieuwe toevoegingen zijn bewust ingetogen vormgegeven, zodat oud en nieuw elkaar versterken zonder hiërarchie.
Materiaalgebruik speelt hierin een sleutelrol. Voor de nieuwe ingrepen kozen we onder meer voor de genuanceerde Petersen steen (Kolumba-formaat), waarvan de slanke proportie en subtiele kleurnuances aansluiten bij het historische metselwerk, maar zich in detaillering duidelijk als eigentijds manifesteren. In combinatie met glas en staal ontstaat een verfijnd spanningsveld tussen massa en transparantie. De nieuwe aanbouw en interieurinterventies zijn daarmee herkenbaar modern, maar vanzelfsprekend ingebed in het bestaande.
Binnen zorgt een heldere routing en een zorgvuldig ontworpen tentoonstellingsinfrastructuur voor flexibiliteit, terwijl de materialisering – robuust waar het kan, verfijnd waar het moet – de monumentale ruimte leesbaar houdt. Licht, akoestiek en schaal zijn subtiel geoptimaliseerd om zowel exposities als lezingen en performances te faciliteren.
Een bijzondere toevoeging vormt de kunstgevel aan de Augustijnenkamp, ontworpen door Studio Job. Deze expressieve interventie geeft het gebouw een uitgesproken, hedendaagse identiteit richting de stad. Waar de oorspronkelijke kerk zich traditioneel en ingetogen toont, introduceert het kunstwerk een gelaagde, verhalende beeldtaal die de culturele functie van het gebouw expliciet maakt. Architectuur en autonome kunst versterken elkaar hier in één gevelbeeld: het monument wordt niet alleen gerestaureerd, maar ook opnieuw verteld.
Met de renovatie van de Kunstkerk is een historisch gebouw opnieuw verankerd in het stadsleven: een culturele schakel tussen Museumkwartier, Nieuwstraat en het Hofkwartier, waar erfgoed en hedendaagse kunst elkaar ontmoeten in een vanzelfsprekende architectonische eenheid.