Dyckstede Barendrecht

Aan de voet van de Middeldijk, op een beschut en door water omzoomd voormalig boerenerf, ligt Dyckstede: een kleinschalig nieuwbouwensemble van veertien woningen dat het karakter van het erf zorgvuldig opnieuw tot leven brengt. Het terrein wordt omringd door volwassen bomen en is ingericht met respect voor de oorspronkelijke erfstructuur, zodat de historische sfeer voelbaar blijft terwijl er comfortabel en eigentijds kan worden gewoond.

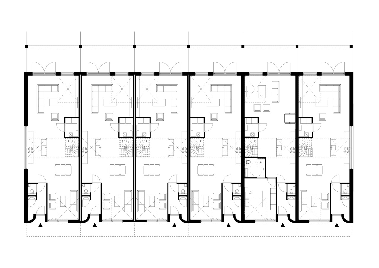
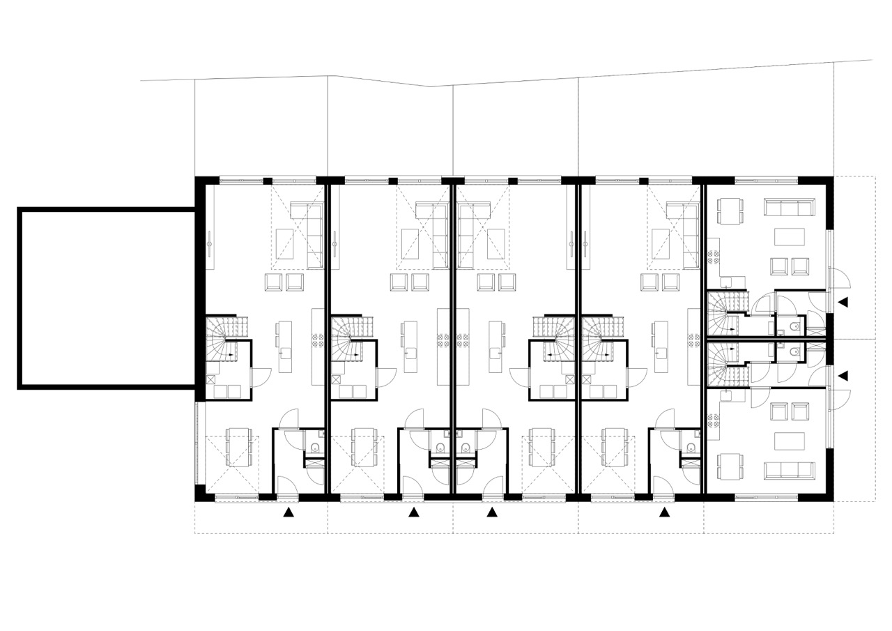
De ontwikkeling bestaat uit drie gebouwen:
– zes woningen in de ‘bestaande’ schuur, die volledig is herbouwd maar qua vorm, materialisatie en kleur aansluit bij de gerenoveerde boerderij aan de dijk;
– zes woningen in een nieuwe schuur, op de plek en in de proporties van de gesloopte schuur, maar eigentijds vormgegeven met een warme houten lattenbekleding en zinken dak;
– twee woningen gecombineerd met de 14 bergingen in de ‘paardenstal’ achter op het erf, uitgevoerd in zwarte gepotdekselde delen die de typologie van het erf op een hedendaagse manier voortzetten.

Het contrast tussen oud en nieuw vormt het hart van het ontwerp. Waar de herbouwde schuur zich voegt in de traditionele beeldtaal, zet de nieuwe schuur in op verfijnde eenvoud en een open, lichte uitstraling. De woningen zelf verrassen met royale hoogtes, vides en strategisch geplaatste dakramen, waardoor de diepe plattegronden ruimtelijk en helder aanvoelen. In de ‘bestaande schuur’ zijn de entrees vormgegeven door strakke stalen kaders dwars door de oude structuur heen. In de nieuwe schuur zijn de entrees uitnodigend en bijzonder vormgegeven: verdiept aangelegd en begeleid door zacht gebogen houten gevels.

Dyckstede is daarmee een eigentijdse interpretatie van het historische boerenerf — zorgvuldig gecomponeerd, met eerlijke materialen, subtiele detaillering en een ruimtelijke kwaliteit die past bij deze bijzondere plek in Barendrecht.

Projectgegevens

Ontwerpteam

J.Markusse, M.Hagens

Opdrachtgever

Phoenix Capital B.V.

Aannemer

Bik Bouw

Constructeur

Jecon Engineering

Andere adviseurs

Ontwikkelaar: JP Projectontwikkeling, Bouwfysica: KVMC, Terreinontwerp: PVLA, Impressies: Yukon

Fotograaf

Kooyker Fotografie

Oplevering

2025

M2/M3

BVO: m2; Inhoud: m3

Overige projecten

Gezondheidscentrum Tijd voor zorg
Kunstkerk
Restaurant De Witt
Swindonk
Villa Visserstuin
Avedko
Gezondheidscentrum Tijd voor zorg
Kunstkerk
Restaurant De Witt
Swindonk
Villa Visserstuin
Avedko